Granulu tvertne ar plakanu pamatni, ieskaitot rāmi – izturīga & Efektīvs | GEMA veikals

Tālrunis +49(0)39262 878720

E-pasts: gemashop@gema-net.de

WhatsApp: +49(0)17660429928

  • ātra piegāde

  • Bezmaksas palīdzība un padoms

  • Atgriešana bez problēmām

  • Atvērts 7 dienas nedēļā

Anhaltinerring 17, 39439 Güsten

Atvērts no pirmdienas līdz ceturtdienai no 7:00 līdz 17:00; Piektdien no 7:00 līdz 16:00; Sestdien no 9:00 līdz 12:00

A.B.S.  |  SKU: HP-FB18

Pelletilo plakanā grīda, ieskaitot rāmi

Vārds: A.B.S. Silo- und Förderanlagen GmbH

Adrese: Industriepark 100, 74706 Osterburken

E-pasts: info@abs-silos.de

Tīmekļa vietne: https://abs-silos.de/

Eiropas ražotājs: Jā

Normāla cena 2.981,79 €
pVN iekļauts. Sūtījums tiks iekasēta norēķinoties.

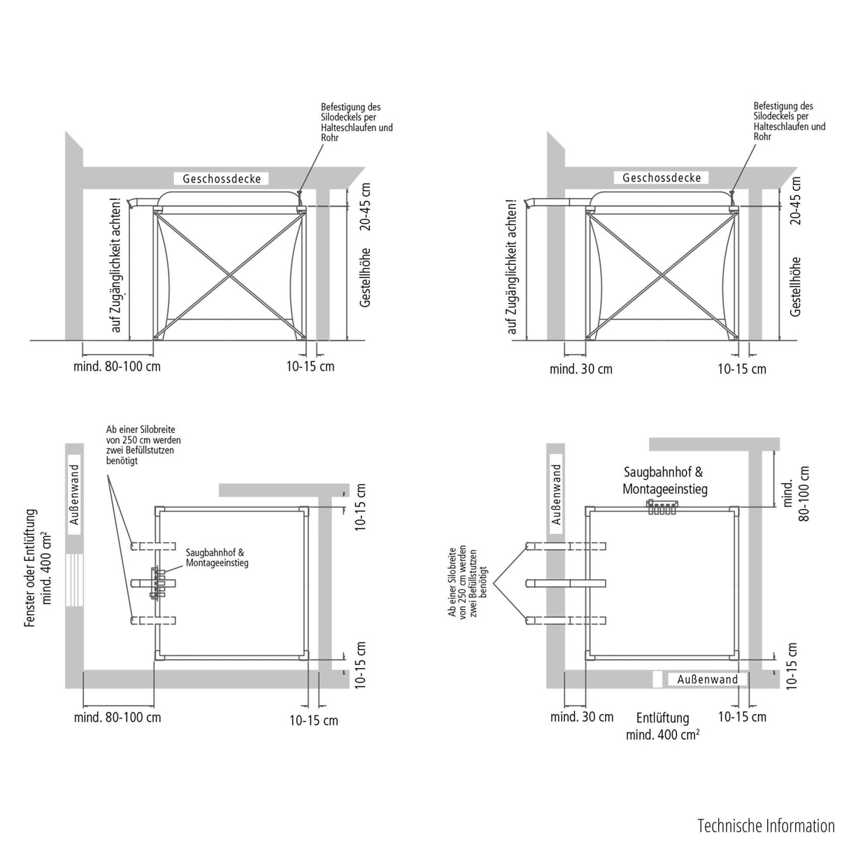
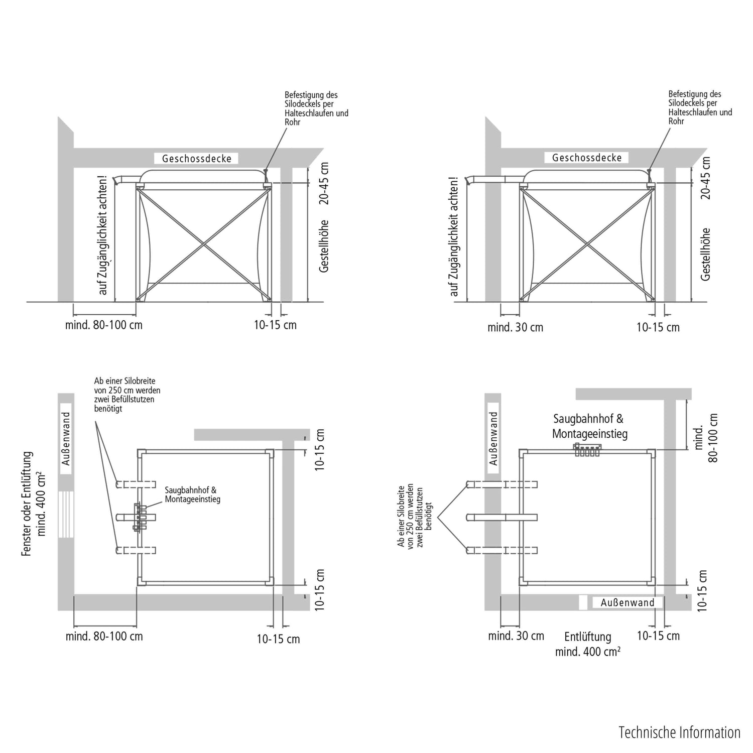
Rāmis
Istabas augstums

Piegāde un nosūtīšana

Apstrādes laiks parasti ir 1 darba diena. Sūtījumu piegāde ir 1–3 darba dienas. Kravu pārvadājumu piegādes laiks ir 3–5 darba dienas. Piegādes laiks ārpus Vācijas atšķiras.

Beschreibung

Granulu tvertne ar plakanu pamatni, ieskaitot rāmi

A.B.SGranulu tvertne ar plakanu dibenu — pievilcīgas cenas pilnas telpas risinājums — nekas vairāk nav iespējams.

no A.B.S.

Ar kuba formas Flexilo® FLACHBOTTOM (Patenta Nr. 10 2009 033 230) no A.B.STiek izmantota no 80 līdz 90% granulu uzglabāšanas vietas. Tas ļauj optimāli un vietu taupoši uzglabāt koksnes granulas gandrīz jebkurā telpā, pat ar zemiem griestiem.

Svarīgākie notikumi Granulu tvertne

  • Lielākais uzpildes tilpums: Var izmantot līdz pat 90% no granulu uzglabāšanas vietas
  • Vienkārša un ātra uzstādīšana
  • Standarta komplektācijā ietilpst manuāla iztukšošanas uzgalis
  • Sūkšanas savienojumus, montāžas piekļuvi, manuālu noņemšanu un uzpildes līniju var piestiprināt katrā pusē atbilstoši jūsu specifikācijām
  • Īpaši izmēri katram pielietojumam

Piegādes apjoms Flexilo® FLACHBOTTOM HP 18, ieskaitot rāmi

  • Silo maiss ar iešūtu starpsienu
  • Cinkota tērauda rāmis kā spraudņu sistēma, ieskaitot montāžas materiālus
  • Piemērota uzpildes sistēma (standarta variantā sānos)
  • Ieskaitot ekstrakciju: 5 sūkšanas zondes, manuālu pārslēgšanas bloku un sūkšanas šļūtenes iekšpusē
  • Tvertnes vāka atbalsta konstrukcija (caurule jānodrošina uz vietas)
  • Montāžas instrukcijas

maksājums & Drošība

Norēķinu iespējas

  • American Express
  • Apple Pay
  • Bancontact
  • BLIK
  • EPS
  • Google Pay
  • iDEAL
  • Klarna
  • Maestro
  • Mastercard
  • MobilePay
  • PayPal
  • Przelewy24
  • Shop Pay
  • Union Pay
  • Visa

Jūsu maksājuma informācija tiek apstrādāta droši. Mēs neuzglabājam un nepiekļūstam jūsu kredītkartes informācijai.

Klientu atsauksmes

Esiet pirmais, kas uzraksta atsauksmi
0%
(0)
0%
(0)
0%
(0)
0%
(0)
0%
(0)

Sazinieties ar mums

reviews
See all reviews